A toilet detail of polyvinyl foam board details has given in the Autocad DWG drawing file. Download the Autocad DWG drawing file.

A toilet detail of polyvinyl foam board details has given in the Autocad DWG drawing file.  Download the Autocad DWG drawing file.
Profile

Uploaded by:

Guptil

Description
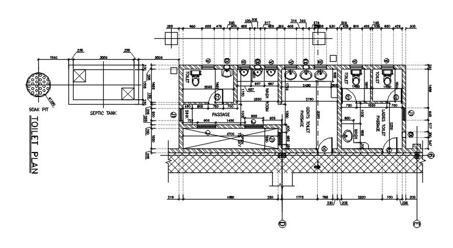
A toilet detail of polyvinyl foam board details has given in the Autocad DWG drawing file. Ventilator, windows, doors and open to sky is provided. Gents toilet passage, ladies toilet passage, wash room, sink and passage are mentioned clearly. Septic tank and soak pit is provided. Dia of soak pit is 1200mm. Size of the septic tank is 3460x1960mm. Thank you for downloading the Autocad file and other CAD program files from our website.
Profile

Uploaded by:

Guptil

find Latest

Related Files

WhatsApp Chat