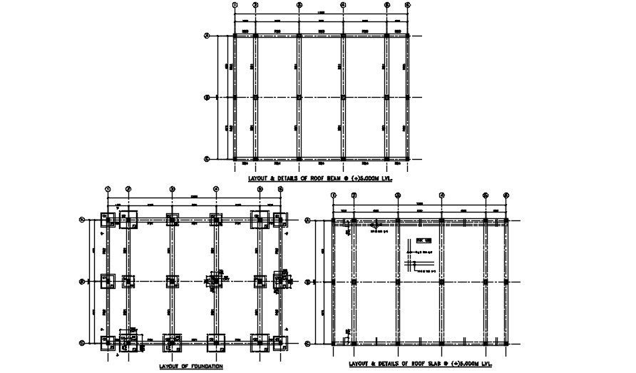
Layout and details of roof slab and roof beam are given in this Autocad 2D DWG drawing file. Download the Autocad DWG drawing file.
Description
Layout and details of roof slab and roof beam are given in this Autocad 2D DWG drawing file. In this drawing file plinth beam, column and foundations are mentioned clearly. Size of footing is mentioned each. Other details are given in the model. Thank you for downloading the AutoCAD file and other CAD program files from our website.
Uploaded by:

