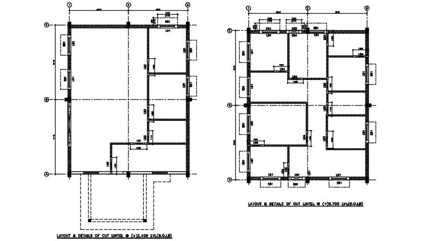
Layout and details of cut lintel is given in this this 2D Autocad DWG drawing file. Download the Autocad DWG drawing file.
Description
Layout and details of cut lintel is given in this this 2D Autocad DWG drawing file. In this drawing file column measurement, lintel beam and sunshades are specified clearly in this drawing file. Download the Autocad 2D DWG drawing file. Thank you for downloading the AutoCAD drawing file and other CAD program files from our website.
File Type:
DWG
File Size:
79 KB
Category::
Structure
Sub Category::
Section Plan CAD Blocks & DWG Drawing Models
type:
Gold
Uploaded by:

