Section view of control room staircase details are given in this 2D Autocad DWG drawing file. Download the Autocad DWG drawing file.
Description
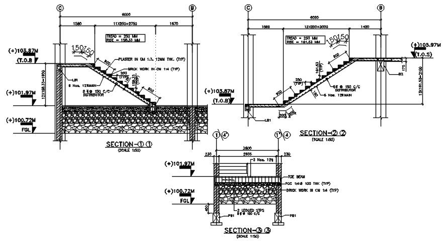
Section view of control room staircase details are given in this 2D Autocad DWG drawing file. For section 1, tread is 250mm and riser is 158.33mm. For section 2, tread is 250mm and riser is 158.33mm. No of bar which used for staircase is indicated in the drawing file. Thank you for downloading the AutoCAD 2D DWG drawing file and other CAD program files from our website.
Uploaded by:

