LOGIN
HOME
CATEGORIES
UPLOAD FILE
PRICING
HOUSE PLAN
ABOUT US
CONTACT US
Structure Detail For Hotel
Home
Categories
Structure
Footing Detail
Structure Detail For Hotel
Uploaded by:
Wang
Fang
View Profile
View Profile
Description
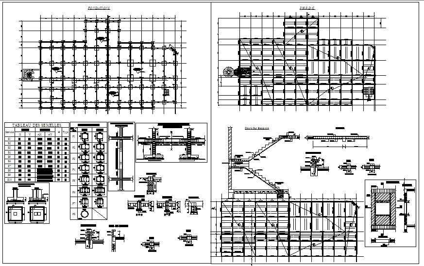
Structure Detail For Hotel Autocad File, & Foundation lay-out, structure beam, Column, slab detail, stair structure detail.
File Type:
DWG
File Size:
2.3 MB
Category::
Structure
Sub Category::
Footing Detail
type:
Gold
Uploaded by:
Wang
Fang
View Profile
Download
Add to libary
find Latest
Related
Files