Main Plant Shed CAD Blocks with Section and Elevation
Description
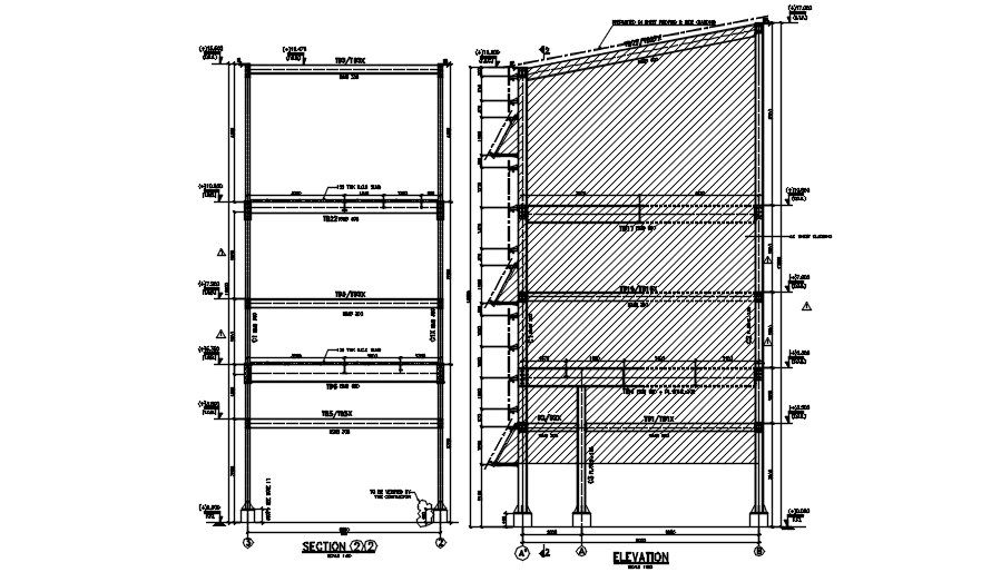
A section and elevation of main plant detail of shed is given in this 2D Autocad DWG drawing file. RCC slab thickness is 125mm for each floor. Pre painted GI sheet roofing and side cladding is provided in this model. Different channel section details are mentioned in this drawing file. Thank you for downloading the 2D Autocad DWG drawing file and other CAD program files from our cadbull website.
File Type:
3d max
File Size:
374 KB
Category::
Structure
Sub Category::
Section Plan CAD Blocks & DWG Drawing Models
type:
Gold
Uploaded by:

