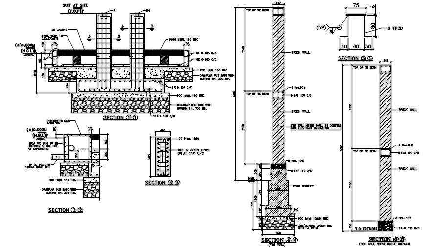
A section detail of transformer layout and foundation of control room details has given in this 2D Autocad DWG drawing file. Downlaod the 2D AutoCAD DWG drawing file.
Description
A section detail of transformer layout and foundation of control room details has given in this 2D Autocad DWG drawing file. No of bars, size of bars, reinforcement details, road level, length and breadth details are given in this model and layout. Other details are given in the autocad model and layout. Thank you for downloading the 2D Autocad DWG drawing file and other CAD program files from our cadbull website.
Uploaded by:

