Section view of Centrifugal station pump & auxiliary foundation details are given in this Autocad DWG drawing file.
Description
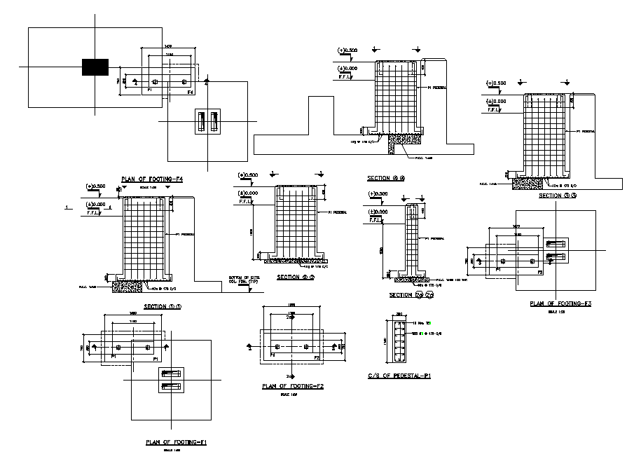
Section view of Centrifugal station pump & auxiliary foundation details are given in this Autocad DWG drawing file. Plan of footing, cross section of pedestal and section details are given clearly in this drawing model and layout. Thank you for downloading the AutoCAD file and other CAD program files from our website.
Uploaded by:

