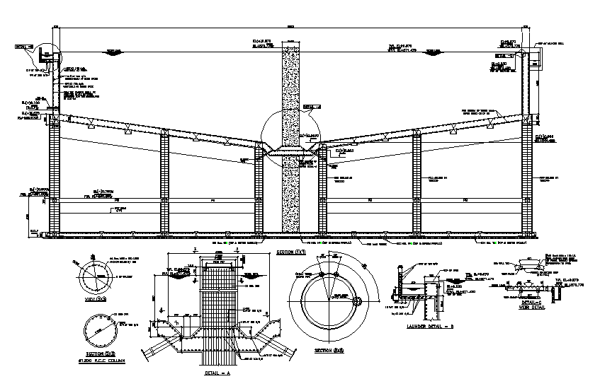
Slab, beam and wall of Effluent treatment plant details are given in this 2D Autocad DWG drawing file. Download the 2D AutoCAD DWG drawing file.
Description
Slab, beam and wall of Effluent treatment plant details are given in this 2D Autocad DWG drawing file. No of bars, size of bars, length, breadth and reinforcement details are given in this drawing model. Other details are given clearly in this drawing file. Download the 2D Autocad DWG drawing file. Thank you for downloading the AutoCAD file and other CAD program files from our website.
File Type:
DWG
File Size:
779 KB
Category::
Structure
Sub Category::
Section Plan CAD Blocks & DWG Drawing Models
type:
Gold
Uploaded by:

