Mill house foundation section details are given in the form of 2D AutoCAD DWG drawing file.Download the Autocad 2D DWG drawing file.
Description
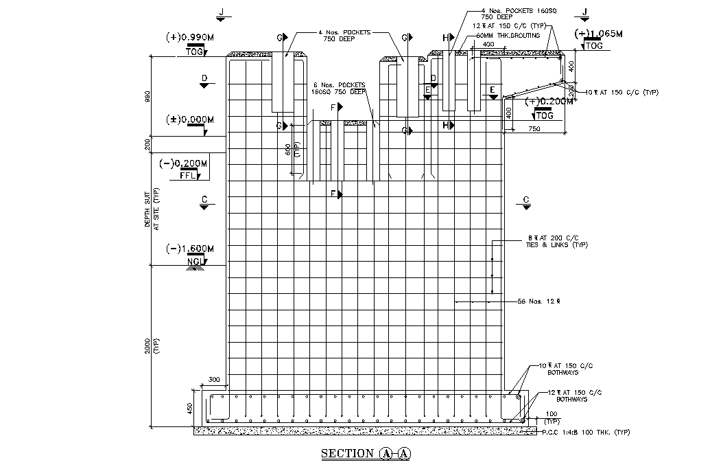
Mill house foundation section details are given in the form of 2D AutoCAD DWG drawing file. Thickness of sand filling and grouting is 100mm and 100 respectively. For another section grouting thickness is 60mm. 4 and 6 nos of deep pockets are used with size of 160sqx750 and 160sqx750respectively. Reinforcement details are given in the model. Download the 2D AutoCAD DWG drawing file. Thank you for download the 2D AutoCAD DWG drawing file and other CAD program files from our website.
Uploaded by:

