2x150 ML coal based TPP of footing details are given in this 2D Autocad DWG drawing file. Download the 2D Autocad DWG drawing file.
Description
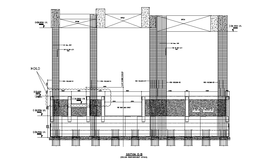
2x150 ML coal based TPP of footing details are given in this 2D Autocad DWG drawing file. In this drawing section and plan are given. Layout of pile raft, column reinforcement details, cross section of column, typical detail for edge angle and column edge angle details are given clearly. The length and breadth of the layout is 22.5m and 11.6m respectively. Other details are given clearly in this drawing model. Download the 2D AutoCAD DWG drawing file. Thank you for download the 2D AutoCAD DWG drawing file and other CAD program files from our website.
Uploaded by:

