Industrial plant detail has given in this 2D Autocad DWG drawing file. Download the 2D Autocad DWG drawing file.
Description
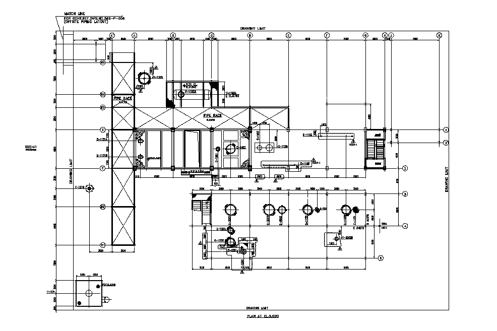
Industrial plant detail has given in this 2D Autocad DWG drawing file. The dimensions are mentioned in this drawing model and layout. The length and breadth of the layout is 58m and 43.5m respectively. It is a cooling tower plan. Piping layout is provided in this model. Pipe racks are mentioned. Download the 2D AutoCAD DWG drawing file. Thank you for download the 2D AutoCAD DWG drawing file and other CAD program files from our website.
Uploaded by:
