Section details of the ladder parts are given in this 2D Autocad DWG drawing file. Download the Autocad 2D DWG drawing file.
Description
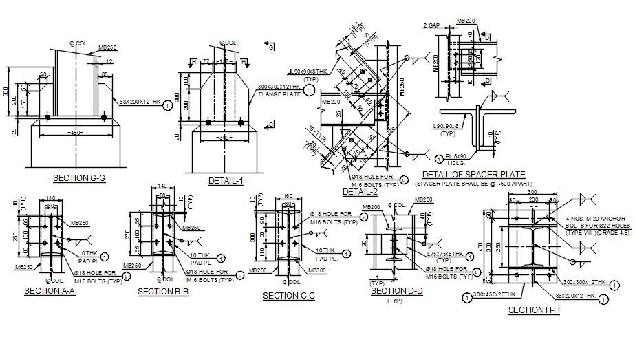
Section details of the ladder parts are given in this 2D Autocad DWG drawing file. Size of flange plate is 300x300x12mm thickness. Spacer plate details are given in this model. Other details are given in this drawing file. Download the 2D Autocad DWG drawing file. Thank you for downloading 2D AutoCAD DWG drawing file and other CAD program files from our website.
Uploaded by:

