Typical welding detail of bottom base plate details is given in this 2D Autocad DWG drawing file. Download the 2D Autocad DWG drawing file.
Description
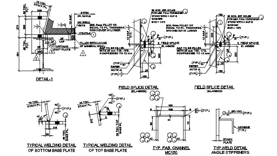
Typical welding detail of bottom base plate details is given in this 2D Autocad DWG drawing file. Thickness of top base plate is 36mm. Thickness of bottom base plate is 40mm. Typical fabricated channel section details are given in this model. Field splice details are given in this file. Download the 2D Autocad DWG drawing file. Thank you for downloading the 2D Autocad file and other CAD program files from our website.
Uploaded by:

