A detail of the open roof deck is given in this 2D Autocad DWG drawing file. Download the 2D Autocad DWG drawing file.
Description
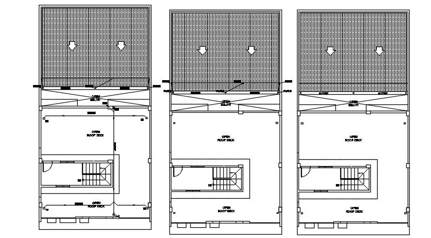
A detail of the open roof deck is given in this 2D Autocad DWG drawing file. Open below and gutter is mentioned in this model. Download the 2D AutoCAD DWG drawing file. Thank you for downloading 2D AutoCAD DWG drawing file and other CAD program files from our website.
Uploaded by:

