Directional air diffuser fixing details are given in this 2D AutoCAD DWG drawing file. Downlaod the 2D Autocad DWG drawing file.
Description
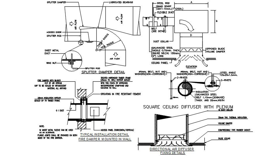
Directional air diffuser fixing details are given in this 2D AutoCAD DWG drawing file. Splitter damper, sheet metal duct, sputter rod, bolt, lubricated, duct collar, steel rod, false ceiling, volume damper, square ceiling diffuser with plenum, wing nut, opposed blade etc., has mentioned in this drawing model. Download the 2D AutoCAD DWG drawing file. Thank you for downloading 2D AutoCAD DWG drawing file and other CAD program files from our website.
Uploaded by:

