LOGIN
HOME
CATEGORIES
UPLOAD FILE
PRICING
HOUSE PLAN
ABOUT US
CONTACT US
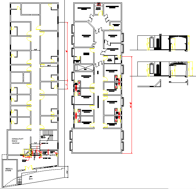
Health Centre Design
Home
Categories
Architecture
Hospital Projects
Health Centre Design
Uploaded by:
Wang
Fang
View Profile
View Profile
Description
OPERATION THATER, CHANGE ROOM, LABOUR ROOM, I.C.U SURGERY, FIRST STAGE ROOM, NURSERY, CONSULTANT ROOM, PRIVATE ROOM, ETC DETAIL INCLUDE THE FILE.
File Type:
DWG
File Size:
273 KB
Category::
Architecture
Sub Category::
Hospital Projects
type:
Gold
Uploaded by:
Wang
Fang
View Profile
Download
Add to libary
find Latest
Related
Files