Ground floor and first floor plan of the bungalow house is given in this 2D Autocad DWG drawing file. Download the 2D Autocad DWG drawing file.
Description
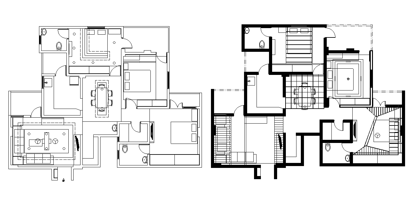
Ground floor and first floor plan of the bungalow house is given in this 2D Autocad DWG drawing file. This plan consists of master bedroom, store room, puja room, car parking, garden, living hall, kitchen, dining, bedroom, washing area, toilets and drawing room. For more details download the Autocad DWG drawing file. Thank you for downloading the 2D AutoCAD DWG drawing file and other CAD program files from our website.
Uploaded by:

