An office detail of the school building is given in this 2D Autocad DWG drawing file.
Description
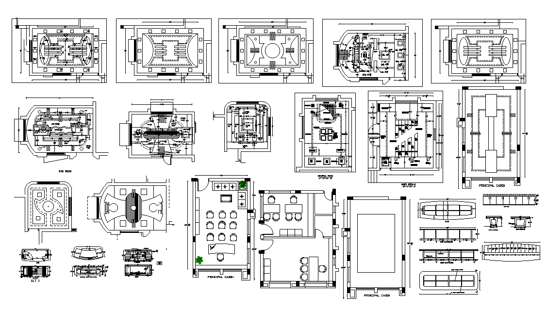
An office detail of the school building is given in this 2D Autocad DWG drawing file. The size of principal room is 15’x24’. File rack, side elevation, general room, principal cabin table detail, plan, principal cabin and front elevation of file rack is given in this 2D Autocad drawing file. For more details download the Autocad DWG drawing file. Thank you for downloading the 2D AutoCAD DWG drawing file and other CAD program files from our website.
Uploaded by:

