Seating arrangement of school plan of office room details are given in this 2D Autocad DWG drawing file.
Description
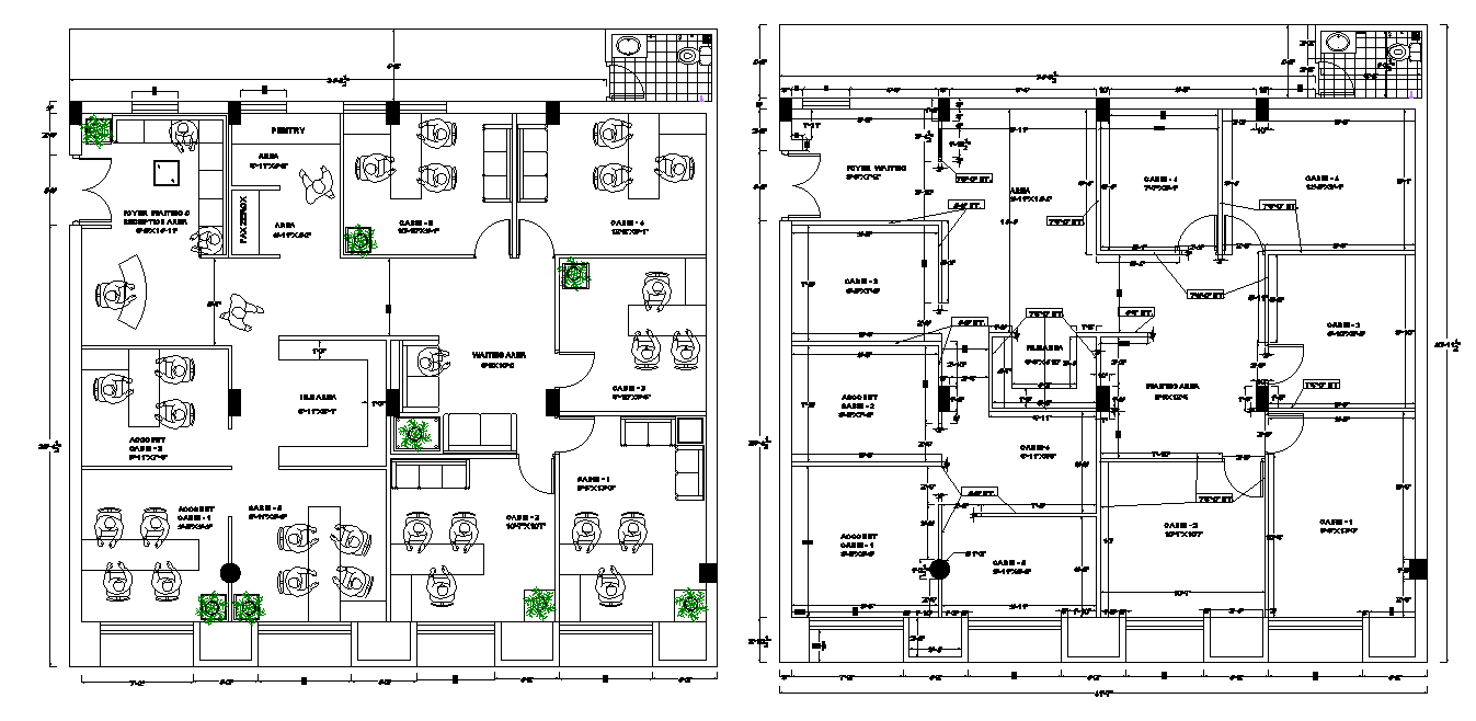
Seating arrangement of school plan of office room details are given in this 2D Autocad DWG drawing file. Account cabins, file area, cabin, waiting area, foyer waiting and reception area, pentry, and common toilets are available in this plan. For more details download the Autocad DWG drawing file. Thank you for downloading the 2D AutoCAD DWG drawing file and other CAD program files from our website.
Uploaded by:

