Ground floor and third floor plan of the hospital building is given in this 2D Autocad DWG drawing file. Download the Autocad drawing file.
Description
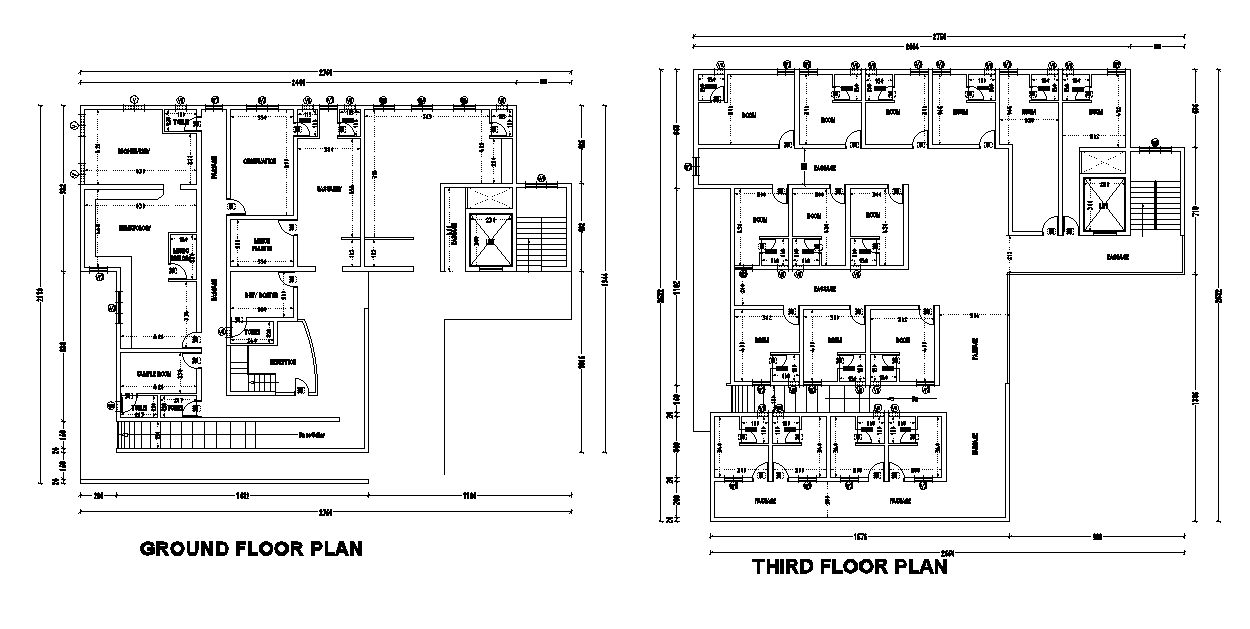
Ground floor and third floor plan of the hospital building is given in this 2D Autocad DWG drawing file. Sample room, duty doctor, minor plaster, micro biology, hematology, biochemistry, casuality and observation room are provided at the ground floor plan. At third floor, Passage and patients room with attached toilets are provided. For more details download the 2D Autocad DWG drawing file. Thank you for downloading the 2D AutoCAD DWG drawing file and other CAD program files from our website.
Uploaded by:

