Ground floor and third floor plan of the hospital building is given in this 2D Autocad DWG drawing file. Download the Autocad drawing file.
Description
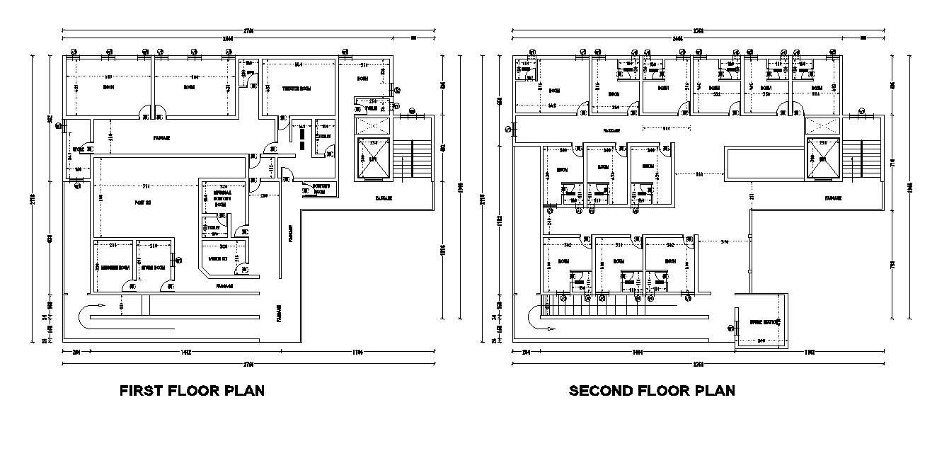
First floor and second floor plan of the hospital building is given in this 2D Autocad DWG drawing file. Machine room, store room, surgical doctors room with attached toilet, doctors room, theatre room, dress changing room, passage are provided at the ground floor plan. At third floor, nurse station, Passage and patients room with attached toilets are provided. For more details download the 2D Autocad DWG drawing file. Thank you for downloading the 2D AutoCAD DWG drawing file and other CAD program files from our website.
Uploaded by:

