Section view of the apartment building is given in this 2D Auotcad DWG drawing file. Download the 2D Autocad DWG drawing file.
Description
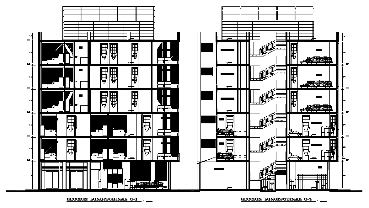
Section view of the apartment building is given in this 2D Auotcad DWG drawing file. This section is given with ground floor with four storey building. Staircase, door opening, living hall, lift and roof is mentioned in this model. Other details are given in this model. Download the 2D Autocad DWG drawing file. Thank you for downloading the Autocad file and other CAD program files from our website.
Uploaded by:

