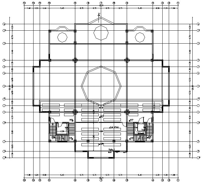
Layout of the rosol church helwan plan is given in this 2D Autocad DWG drawing file. Download the 2D Autocad DWG drawing file.
Description
Layout of the rosol church helwan plan is given in this 2D Autocad DWG drawing file. This plan is provided with the seating arrangement, required rooms and staircase etc., other details are given in this model. Download the 2D Autocad DWG drawing file. Thank you for downloading the 2D AutoCAD DWG drawing file and other CAD programs from our website.
Uploaded by:

