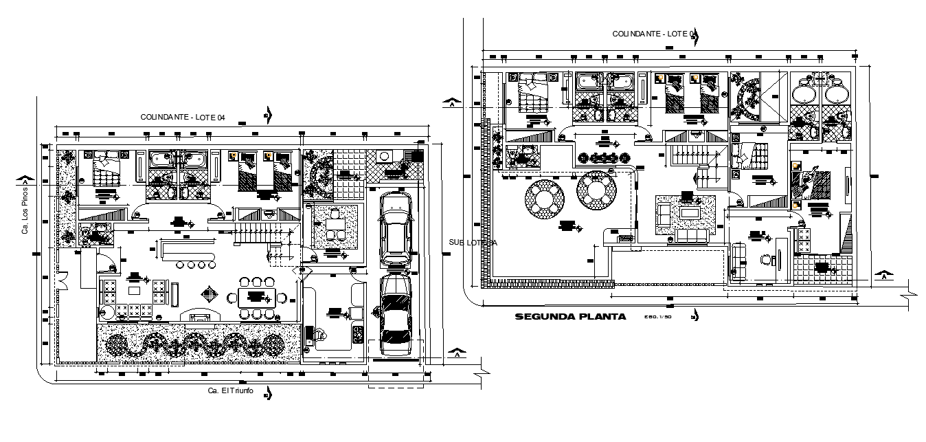
Duplex house plan details are given in this 2D Autocad DWG drawing file.
Description
Duplex house plan details are given in this 2D Autocad DWG drawing file. This plan consists of master bedroom, general toilet, store room, puja room, car parking, garden, living hall, kitchen, dining, bedroom, washing area, master toilets and drawing room. For more details download the Autocad DWG drawing file. Thank you for downloading the 2D AutoCAD DWG drawing file and other CAD program files from our website.
Uploaded by:

