Apartment Building Sectional Elevation CAD Drawing DWG File
Description
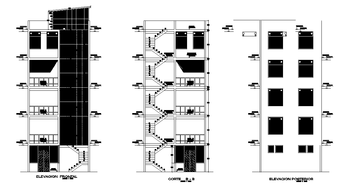
The architecture residence apartment building sectional elevation CAD drawing that shows front and rear elevation design along with right side section view which consist 5 storey floor level building model design, staircase and all dimension detail. Thank you for downloading the AutoCAD file and other CAD program from our website.
Uploaded by:

