Floor plan detail drawing provided in this AutoCAD file. Download the Autocad file.
Description
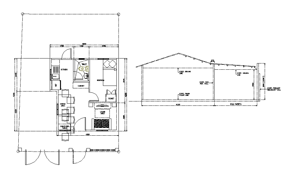
Floor plan detail drawing provided in this AutoCAD file. in this file roof section detail given with dimensions and specifications. this can be used by architects and engineers. Download this 2d AutoCAD drawing file.
Uploaded by:

