Residence detail drawing specified in this AutoCAD file. Download the AutoCAD file.
Description
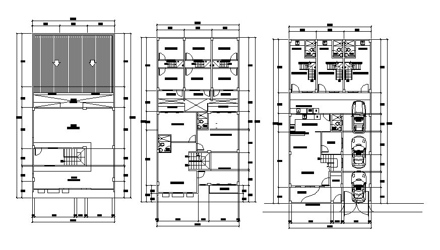
Residence detail drawing specified in this AutoCAD file. in this file, the g+2 floor consists of a living , kitchen, and dining with bedroom and utilities detail given with dimensions and specifications. this can be used by architects and engineers. Download this 2d AutoCAD drawing file.
Uploaded by:
