Parking detail drawing specified in this AutoCAD file. Download the AutoCAD file.
Description
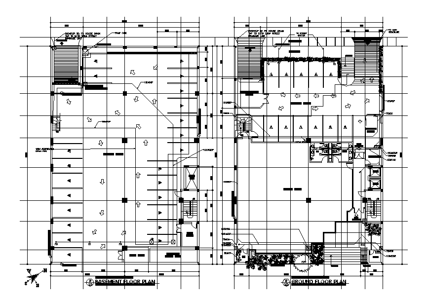
Parking detail drawing specified in this AutoCAD file. this file consists of a basement floor plan and ground floor plan detail given with parking detail, dimensions, and specifications. this can be used by architects and engineers. Download this 2d AutoCAD drawing file.
Uploaded by:

