Column plan detail drawing presented in this AutoCAD file. Download this 2d AutoCAD drawing file.
Description
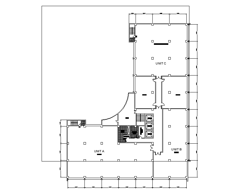
Column plan detail drawing of the corporate building presented in this AutoCAD file. this file consists of utilities detail and servies detail given with working drawing detail. this can be used by architects and engineers. Download this 2d AutoCAD drawing file.
Uploaded by:
