Plan of house is given in this 2D Autocad DWG drawing file. Download the 2D Autocad DWG drawig file.

 Plan of  house is given in this 2D Autocad DWG drawing file.  Download the 2D Autocad DWG drawig file.
Profile

Uploaded by:

Meera

Description
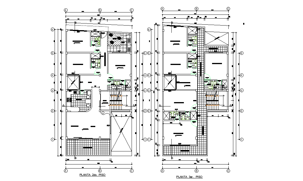
Plan of house is given in this 2D Autocad DWG drawing file. This plan consists of master bedroom, general toilet, store room, puja room, car parking, garden, living hall, kitchen, dining, bedroom, washing area, master toilets and drawing room. For more details download the Autocad DWG drawing file. Thank you for downloading the 2D AutoCAD DWG drawing file and other CAD program files from our website.
Profile

Uploaded by:

Meera

find Latest

Related Files

WhatsApp Chat