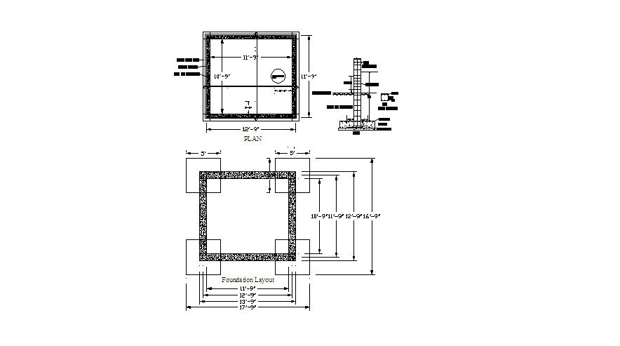
Overhead Water Storage Tank Foundation Plan. Download cad file now.
Description
Overhead Water Storage Tank is a usual Water storage tank as its name stands for itself these tanks are placed over the head that is built on a certain height. this water tank design for 10000 gallons.
Uploaded by:
Muhammad
Ikram

