Parquet recreacional huanuni plan is given in this 2D Autocad drawing file. Download the 2D Autocad DWG drawing filel
Description
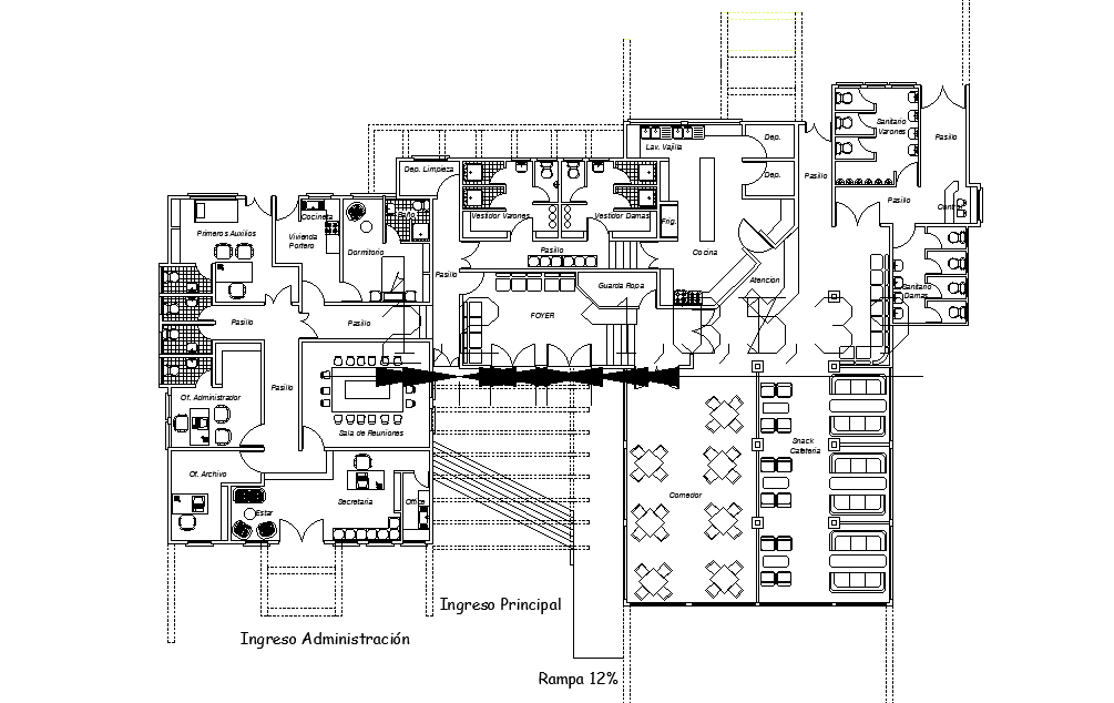
Parquet recreacional huanuni plan is given in this 2D Autocad drawing file. This is single floor building. Administrative login, wardrobe, corridor, administrator office, meeting room, secretary room, doorman housing, kitchen, bedroom, living place, men’s dressing room, ladies dressing room, cleaning department, bathroom for men and ladies, snack and cafeteria room, dining and foyer are mentioned in this drawing file. Download the 2D Autocad drawing file. Thank you downloading the 2D AutoCAD DWG drawing file and other CAD program files from our website.
Uploaded by:

