Massage clinic centre is given in this 2D Autocad DWG drawing file. Download the 2D Autocad DWG drawing filel

Massage clinic centre is given in this 2D Autocad DWG drawing file.  Download the 2D Autocad DWG drawing filel
Profile

Uploaded by:

Pavithra

Description
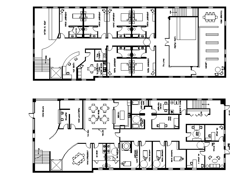
Massage clinic centre is given in this 2D Autocad DWG drawing file. This is massage centre. This plan consists of nurse station, laundry store, nurse break area, overnight rooms with attached toilet, library, yoga room, kitchen, dining area, bath treatment room, dietary treatment room, massage room, massage and bath treatment, conference room and doctor lounge and doctor duty room are mentioned in this drawing file. Download the 2D Autocad drawing file. Thank you downloading the 2D AutoCAD DWG drawing file and other CAD program files from our website.
Profile

Uploaded by:

Pavithra

find Latest

Related Files

WhatsApp Chat