Design and construction of housing in morales are given in this Autocad drawing.Download the 2D Autocad DWG drawing file.
Description
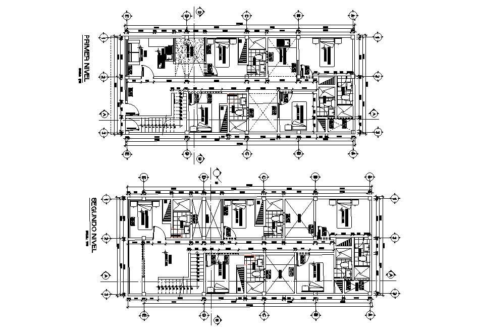
Design and construction of housing in morales are given in this Autocad drawing. The length and breadth of the plan is 17m and 8m respectively. First floor and second floor details are given. This is consists of dining room, living hall, Water closets, staircase, bedrooms with attached toilet, kitchen, patio and terrace level are mentioned in this drawing model. There are 8 bedrooms available in this house. Download the 2D Autocad drawing file. Thank you downloading the 2D AutoCAD DWG drawing file and other CAD program files from our website.
Uploaded by:

