Section view of 26x12m hospital plan is given in this 2D Autocad DWG drawing file.Download the 2D Autocad draiwng file.
Description
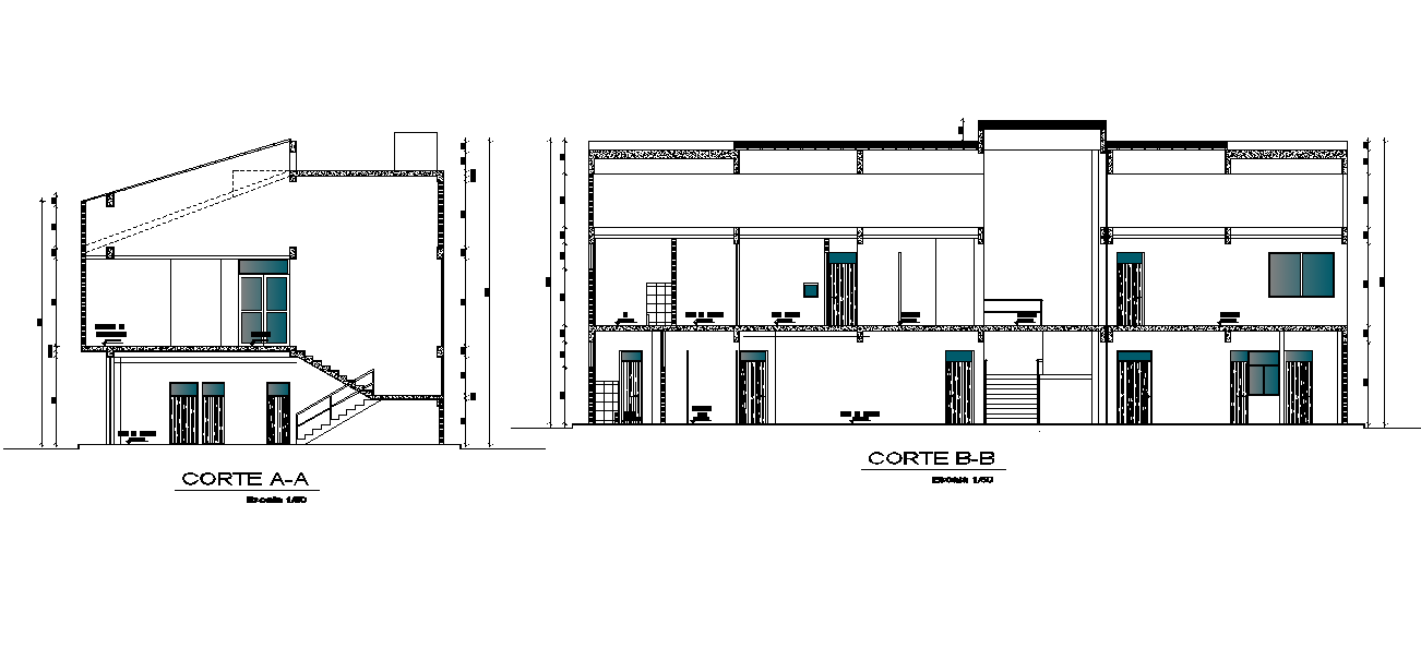
Section view of 26x12m hospital plan is given in this 2D Autocad DWG drawing file. Total height of the building is 10.79m. Health post is given in this drawing model. Doors, windows, staircase and thickness of slab is give in this model. Download the 2D Autocad drawing file. Thank you downloading the 2D AutoCAD DWG drawing file and other CAD program files from our website.
Uploaded by:

