G+3 house plan is given in this 2D Autocad DWG drawing file. Download the 2D Autocad draiwng file.
Description
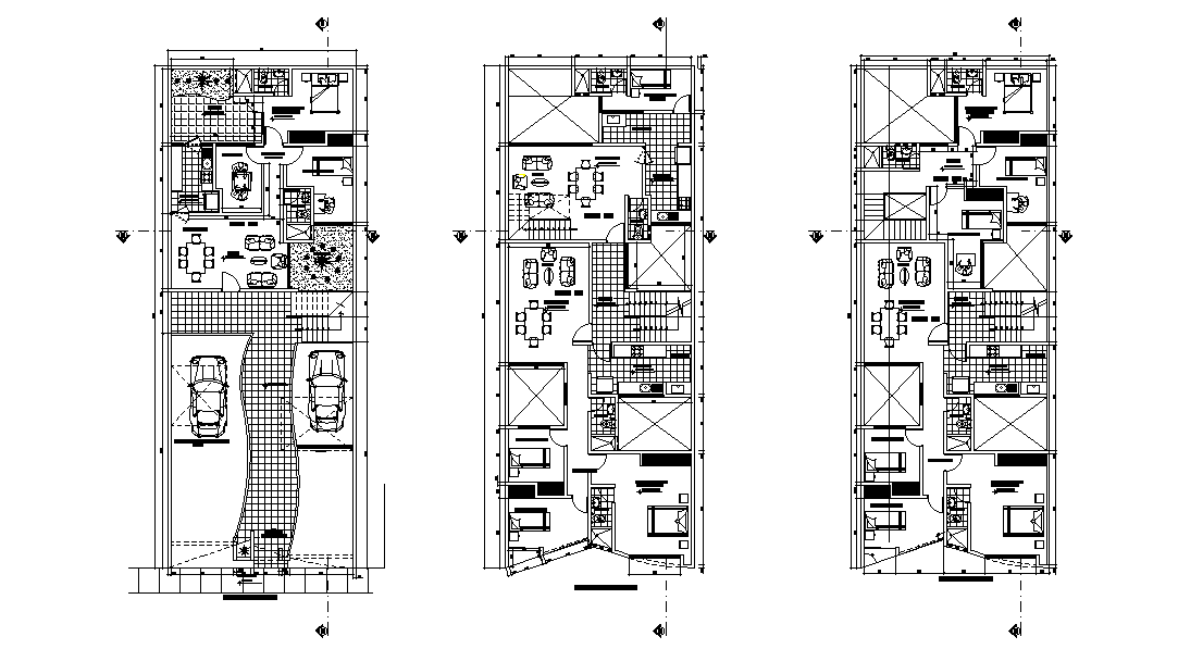
G+3 house plan is given in this 2D Autocad DWG drawing file. The length and breadth of the plan is 9m and 24m respectively. At first and third floor singe house is given. At second floor there are two houses available. At ground floor car parking, living hall, dining, kitchen, bedrooms with attached toilet are provided. At first, second and third floor kitchens, dining halls, living halls, bedrooms, toilets and study room given. Download the 2D Autocad drawing file. Thank you downloading the 2D AutoCAD DWG drawing file and other CAD program files from our website.
Uploaded by:

