Multispecialty hospital plan is given in this 2D Autocad DWG drawing file. Download the 2D Autocad DWG drawing file.
Description
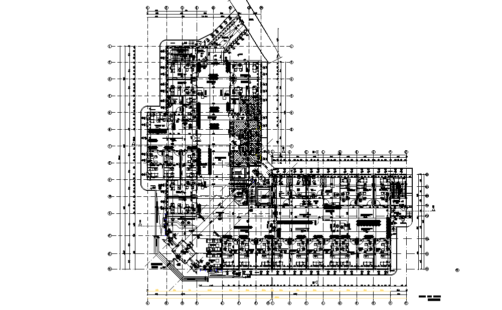
Multispecialty hospital plan is given in this 2D Autocad DWG drawing file. This hospital is provided with the all amenities. Chest surgery examination, endocrine examination, electric panel room, polyclinic waiting area, reception area, bathrooms, and other details are given in this drawing model. Download the 2D Autocad drawing file. Thank you downloading the 2D AutoCAD DWG drawing file and other CAD program files from our website.
Uploaded by:

