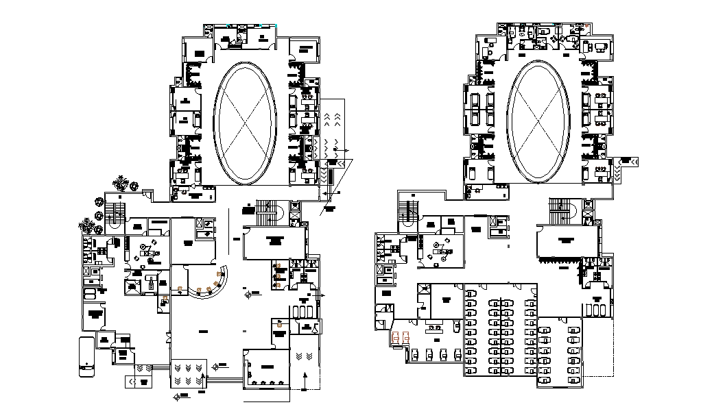
Autocad DWG drawing file has the details of hospital plan.Download the 2D Autocad DWG drawing file.
Description
Autocad DWG drawing file has the details of hospital plan. This is five storey building. This plan consists of obstetrics gynecology, medicine area, reception area, waiting room, bathrooms, water closets, public toilet, administrative area, secretary room, admission information and other details are given in this model. Download the 2D Autocad drawing file. Thank you downloading the 2D AutoCAD DWG drawing file and other CAD program files from our website.
Uploaded by:
