8x18m Rest bar hotel plan is given in this 2D Autocad DWG drawing file. Download the Autocad drawing file.
Description
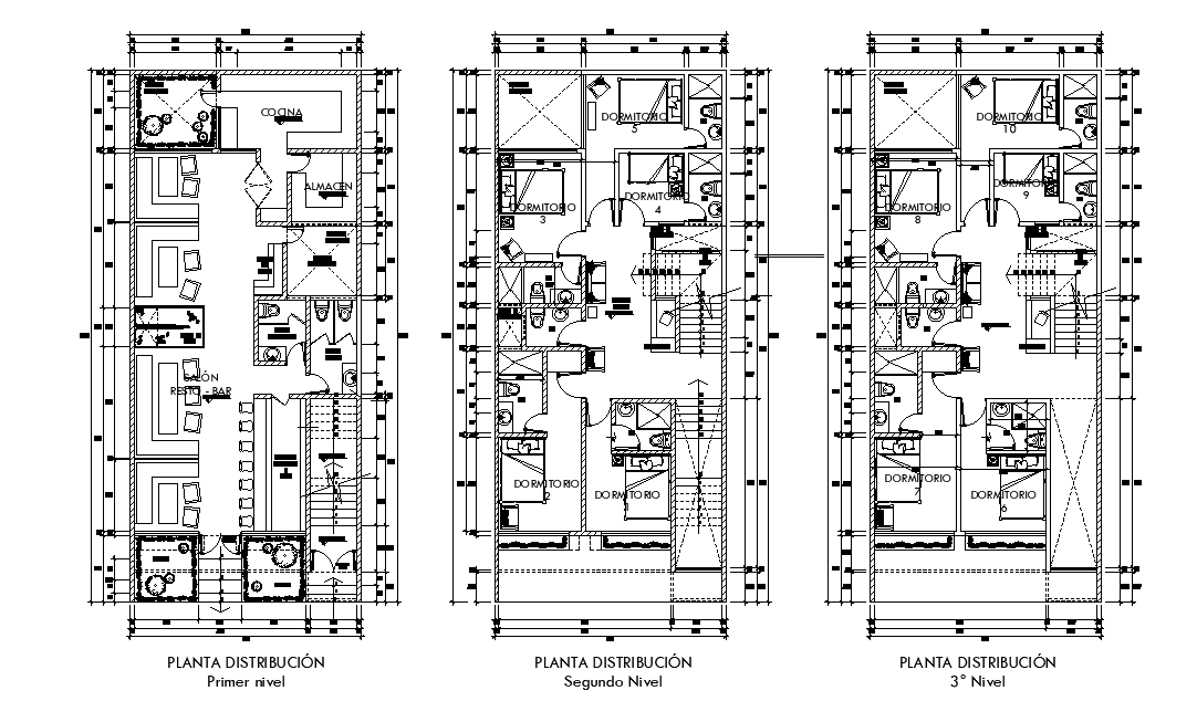
8x18m Rest bar hotel plan is given in this 2D Autocad DWG drawing file. In this drawing the details of hotel plan and name are given. The length and breadth of the hotel plan is 8m and 18m respectively. This plan contains kitchen, dining, rest bar, yard, waterfalls, toilets for male and female, attention bar and box and reception area are mentioned in this first floor. Many bedrooms are available at the second and third floor of the hotel. Download the 2D Autocad DWG drawing file. Thank you for downloading the 2D Autocad DWG drawing and other CAD program files from our website.
Uploaded by:

