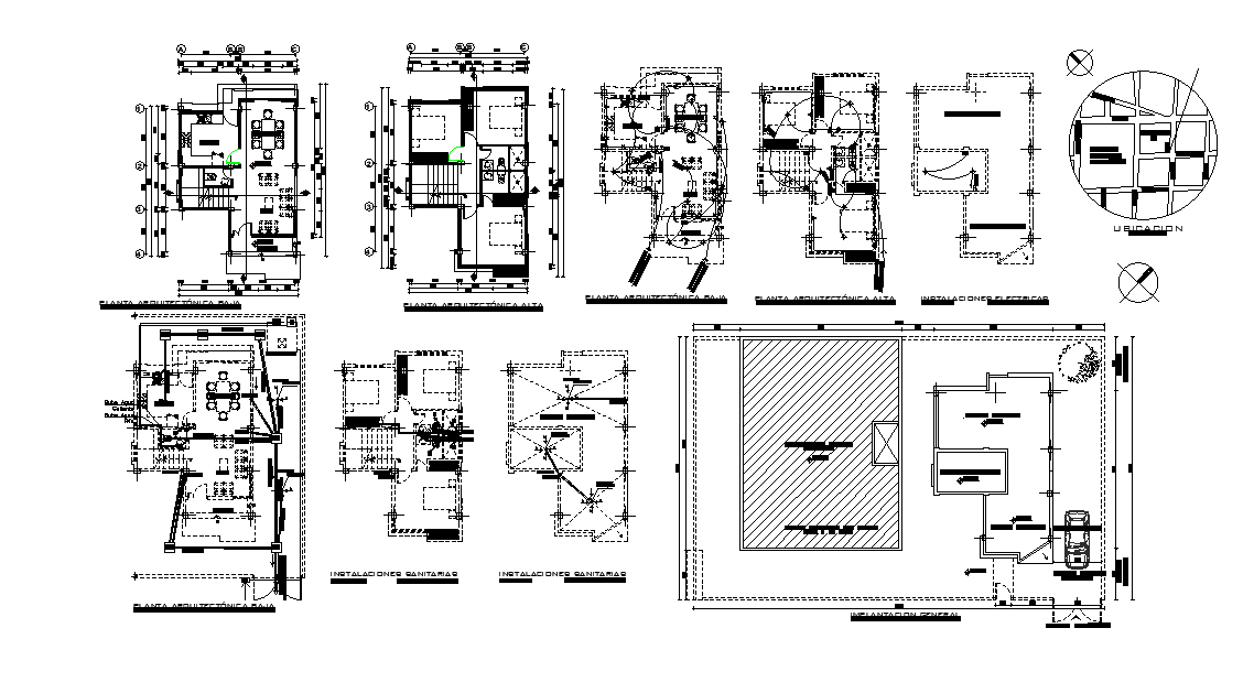
11x6m Residential plan and sanitary installation details are given in this 2D Autocad DWG drawing file. Download the 2D Autocad file.
Description
11x6m Residential plan and sanitary installation details are given in this 2D Autocad DWG drawing file. General implementation details are given. Sanitary installation is given clearly in this model. This plan consists of dining room, bedrooms, kitchen, living hall, portico, common toilet and staircase is given inside. The length and breadth of the plan is 11m and 6m respectively. Location of the plan is mentioned in this drawing model. Other details are given in this 2D Autocad DWG drawing file. Download the 2D AutoCAD DWG drawing file. Thank you for downloading the 2D AutoCAD DWG drawing file and other CAD program files from our website.
Uploaded by:

