G+2 house plan is given in this 2D Autocad DWG drawing file. Download the Autocad file.
Description
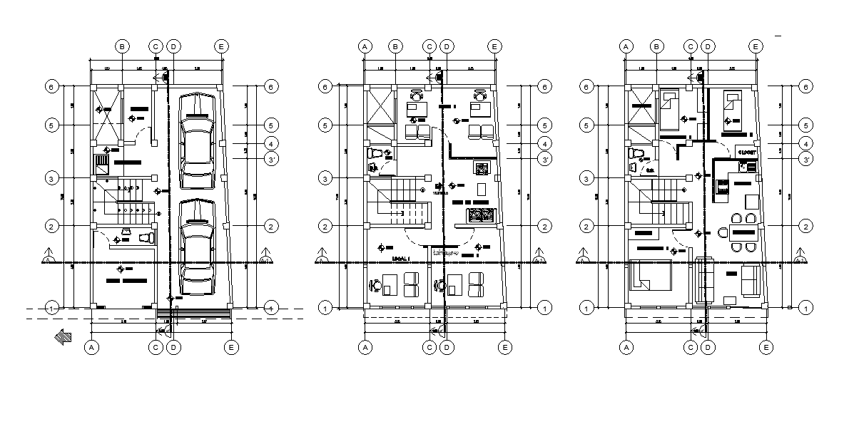
G+2 house plan is given in this 2D Autocad DWG drawing file. The length and breadth of the plan is 6.85m and 11m. This plan consists of two bedrooms, dining room, living hall, laundry and toilet. The toilet is given in the master bedroom. At ground floor car parking, laundry and local commercial shop is given. Other details are given in this model. Download the 2D AutoCAD DWG drawing file. Thank you for downloading the 2D AutoCAD DWG drawing file and other CAD program files from our website.
Uploaded by:

