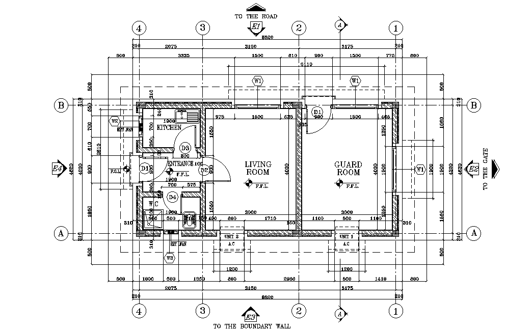
Earth guard house plan details are given in this 2D Autocad DWG drawing file. The length and breadth of the guard plan is 8.8m and 4.6m respectively.Download the Autocad file.
Description
Earth guard house plan details are given in this 2D Autocad DWG drawing file. The length and breadth of the guard plan is 8.8m and 4.6m respectively. Living room, entrance, water closets, bathroom, kitchen and guard room is mentioned in this drawing file. Other details are given in this model. Download the 2D AutoCAD DWG drawing file. Thank you for downloading the 2D AutoCAD DWG drawing file and other CAD program files from our website.
Uploaded by:

