Luxury villa house plan is given in this 2D AutoCAD DWG drawing file. Download now.
Description
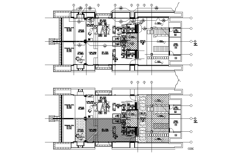
Luxury villa house plan is given in this 2D AutoCAD DWG drawing file. The major benefit of the plan is swimming pool. This plan consists of master bedroom, kitchen, dining, living hall, children’s bedroom, vanity, water closets, bathroom, bath tub, landscape area and other details are given in this AutoCAD file. Download the 2D AutoCAD DWG drawing file. Thank you for downloading the 2D AutoCAD DWG drawing file and other CAD program files from our website.
Uploaded by:

