Health Care Center detail

Health Care Center detail
Profile

Uploaded by:

Priyanka

Patel

Description
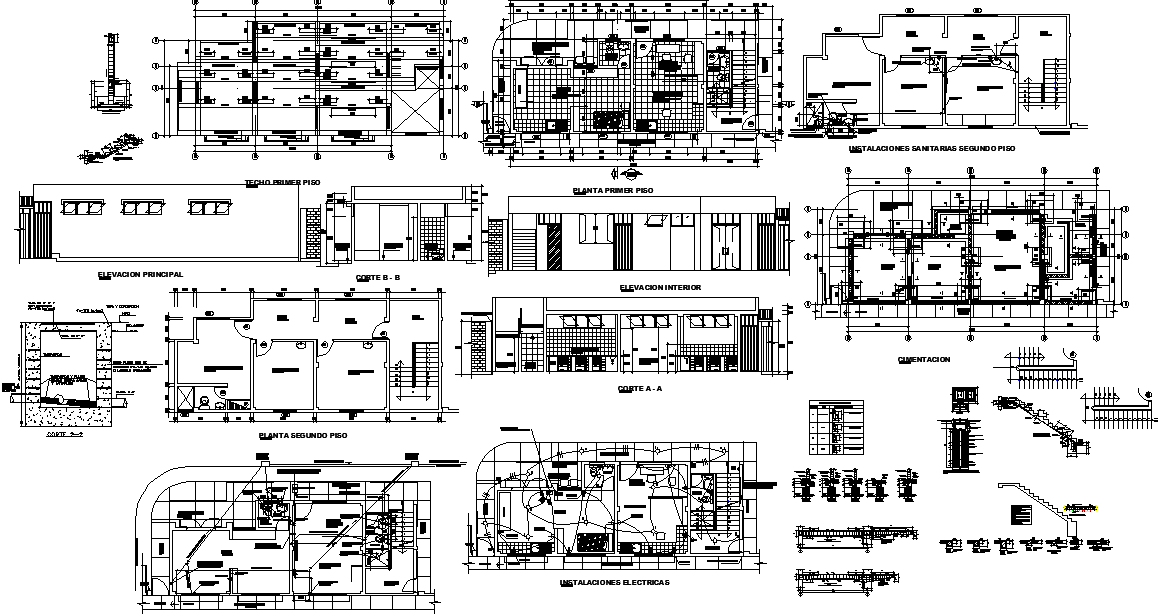
Up ventilation ø 2 ", laboratory, Inner path, Water comes from main network Women's restroom, Tarred and polished, Variable height etc detail include the care centre.
Profile

Uploaded by:

Priyanka

Patel

find Latest

Related Files

WhatsApp Chat