Shopping mall plan is given in this 2D Autocad drawing file. Download now.
Description
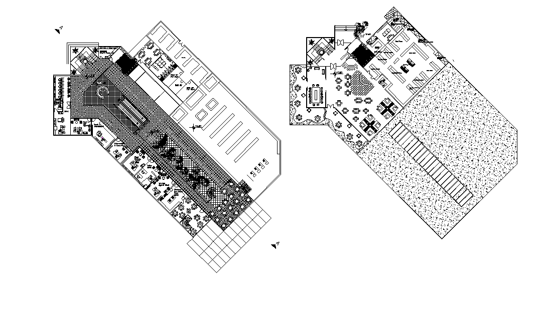
Shopping mall plan is given in this 2D Autocad drawing file. In this drawing different types of shops are given. Tourism agent, real estate agent, information & security room, kitchen for fast food, café fast food, book stationary, car rent agent, bank, cashier office, cleaning staff room, cold are for meat, cold air for flesh, and other details are given in this drawing model. Thank you for downloading the Autocad drawing file and other CAD program files from our website.
Uploaded by:

