Villa plans are given in this Autocad 2D drawing file. Download now.
Description
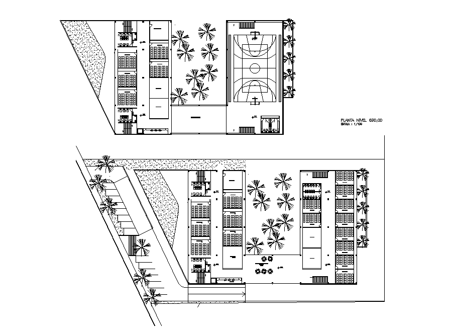
Villa plans are given in this Autocad 2D drawing file. This is given with garden and basket ball court. Tresses are mentioned in this drawing file. Exterior design of villa community is given. Download the Autocad drawing file. Thank you for downloading the Autocad drawing file and other CAD program files from our website.
Uploaded by:

