House Planning of society

House Planning  of society
Profile

Uploaded by:

Priyanka

Patel

Description
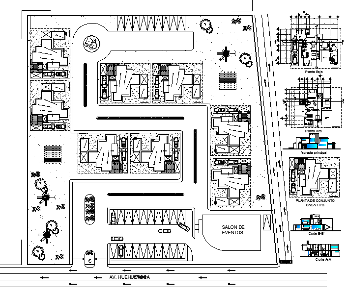
House Planning of society, layout plan, planing of society details download file, Event hall, Main entrance design, single House Planing design include with elevation.
Profile

Uploaded by:

Priyanka

Patel

find Latest

Related Files