Bank floor plan detail drawing specified in this AutoCAD file. Download the AutoCAD file.

Bank floor plan detail drawing specified in this AutoCAD file.  Download the AutoCAD file.
Profile

Uploaded by:

Rachna Jilka

Description
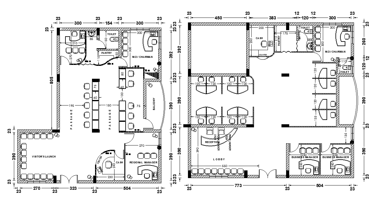
Bank floor plan detail drawing specified in this AutoCAD file. this file consists of a furniture layout plan and working drawing with dimensions and specifications detail given in this file. this can be used by architects and engineers. Download this 2d AutoCAD drawing file.
Profile

Uploaded by:

Rachna Jilka

find Latest

Related Files

WhatsApp Chat