Bathroom detail drawing presented in this AutoCAD file. Download the AutoCAD file.
Description
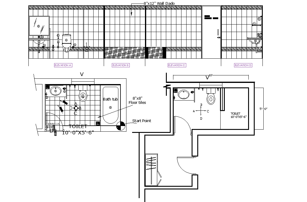
Bathroom detail drawing presented in this AutoCAD file. this file consists of sanatory blocks with wall tiling and floor tiling detail drawing in this file with specifications. this can be used by architects and engineers. Download this 2d AutoCAD drawing file.
Uploaded by:

